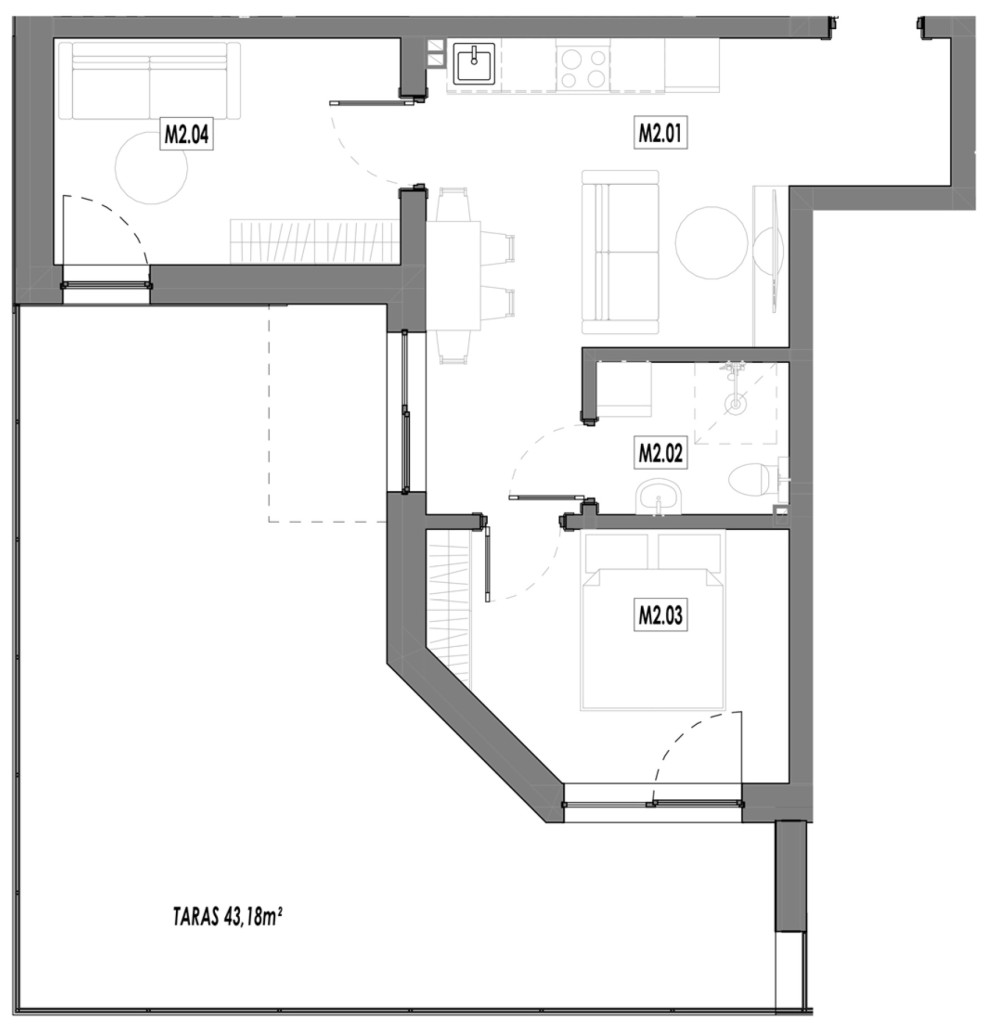
Mieszkanie M2

Wyszukiwanie graficzne

Znajdź mieszkanie

Wyszukaj
wróć do listy mieszkań
Nr mieszkania: M2
Kondygnacja: 1
Liczba pokoi: 3
Powierzchnia: 42.84 m2
Balkon/taras: 43.18 m2
Cena za metr: 10900 zł brutto
Cena: 466 956 zł brutto
Dostępność: dostępne

Zestawienie pomieszczeń

LpNazwaPow. [m2]
M2.01 Salon 19,63
M2.02 Łazienka 3,56
M2.03 Sypialnia 10,08
M2.04 Pokój 9,57
Obligatoryjnie do ceny mieszkania należy doliczyć obowiązkowy wykup miejsca parkingowego w garażu lub miejsca postojowego na zewnątrz.
Rzut mieszkania